Düdenbüttel:
RESERVIERT Resthof Tierpension Gnadenhof Selbstversorger usw.
Objekt-Nr.: 2021218

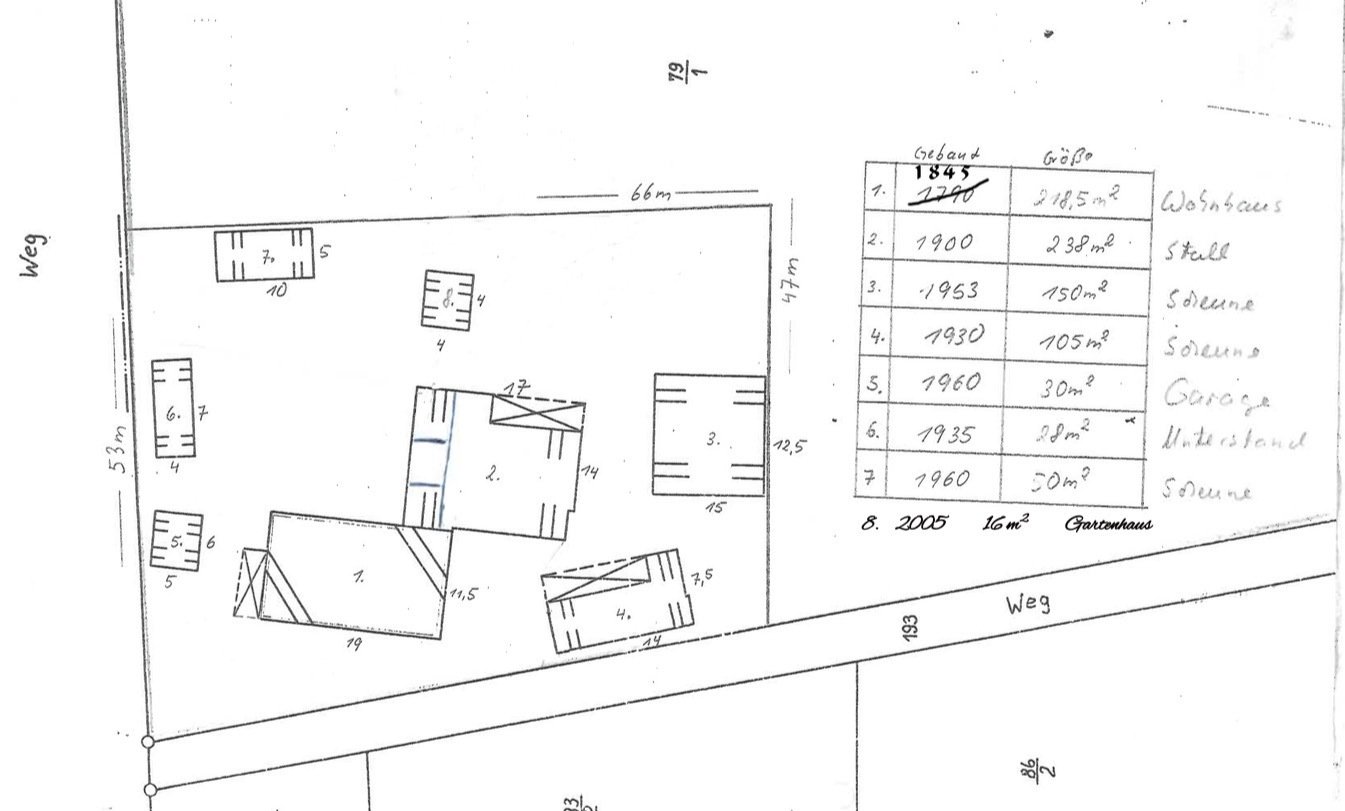
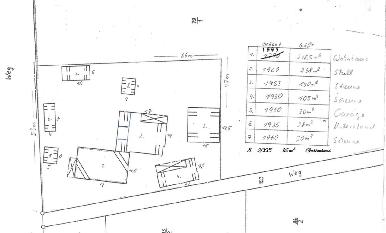
Hofstelle

Wohnhaus

Wohnhaus

Hofstelle

Scheune

Scheune

Stall

Gartenhütte

Garten

Scheune

Garten

Hühnerstall

Garagen

Garten

Garten

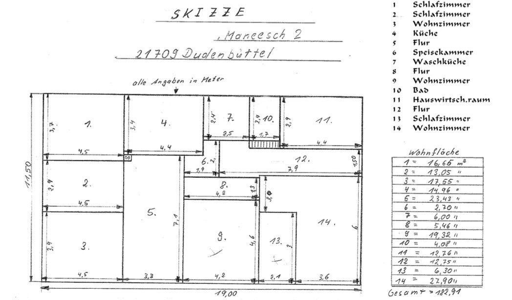
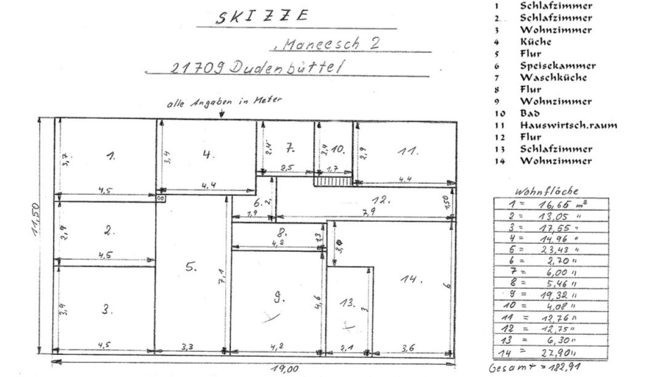
Wohnen

Wohnen

Flur

Hofstelle

Skizze Wohnhaus




















Preis:
185.000 €
Wohnfläche ca.:
182 m²
Grundstück ca.:
3.215 m²
Zimmeranzahl:
6
Eine 1847 erbaute Hofstelle, die etwas Liebe braucht, wartet auf ihren neuen Besitzer. Dieses Objekt auf ca. 3215 qm mit seinen 8 Gebäuden, Wohnhaus, Stall, Scheunen, eine Doppelgarage, ein Unterstand und ein Gartenhaus warten auf den neuen Besitzer, der den Glanz früherer Tage wiederherstellt.
Das alte Bauernhaus mit ca. 182 qm und 6 Zimmern sowie Küche und Bad ist perfekt für die große Familie oder, wie es früher war, für zwei Generationen. Der Stall ist im Moment für die Viehhaltung ausgebaut, kann aber z.B. für die Pferdehaltung umgebaut werden. Vielleicht ist es aber auch etwas für Selbstversorger, oder jemanden, der einen Gnadenhof sucht. Sie sehen: Für den, der eine gute Idee mitbringt könnte es das ideale Zuhause sein.
Es besteht eventuell die Möglichkeit, angrenzendes Grünland dazu zu erwerben oder erst einmal zu pachten. Das sollten wir aber in einem persönlichen Gespräch klären.
Haustyp: Bauernhaus
Etagenanzahl: 1
Provisionspflichtig: ja
Küche: Einbauküche
Anzahl Schlafzimmer: 3
Anzahl Badezimmer: 1
Einliegerwohnung: ja
Gäste-WC: ja
Dachboden: ja
Umgebung: ruhige Gegend
Qualität der Ausstattung: einfach
Zustand: sanierungsbedürftig
Energieklasse: H
Heizung: Zentralheizung
Befeuerungsart: Gas
Energieausweistyp: Bedarfsausweis - gültig vom 16.10.2023 bis 27.08.2035
Energieeffizienz-Klasse: H
Baujahr laut Energieausweis: 1847
Bei Abschluss eines Kaufvertrages wird eine Vermittlungs-/ Nachweisprovision in Höhe von 3% auf den Kaufpreis vom Käufer fällig.
Die von uns gemachten Informationen beruhen auf Angaben des Verkäufers bzw. der Verkäuferin. Für die Richtigkeit und Vollständigkeit der Angaben kann keine Gewähr bzw. Haftung übernommen werden. Ein Zwischenverkauf und Irrtümer sind vorbehalten.
AUF WUNSCH empfehlen wir Ihnen Finanzierungsexperten von Banken aus der Region
Wir weisen auf unsere Allgemeinen Geschäftsbedingungen hin. Durch weitere Inanspruchnahme unserer Leistungen erklären Sie die Kenntnis und Ihr Einverständnis.
Das könnte Ihnen auch gefallen

























