Oldendorf:
Viel Platz im Haus und ein zusätzlicher Bauplatz
Objekt-Nr.: 2021217

Haus Parkplätze

Terasse Haustür

Garagen

Haus

Anbau

Garten zum Haus

Garten

Haus Garten

Eingangsbereich

Flur

Wohnzimmer unten

Wohnzimmer

Küche

Waschmaschine Trockner

Schlafzimmer unten

Bad

Treppe

Schlafzimmer oben

Schlafzimmer oben

Bad oben

Schlafzimmer oben

Wohnzimmer oben

Balkon

Kaminzimmer

Sauna Raum

Sauna


























Preis:
278.000 €
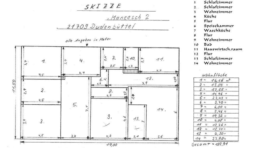
Wohnfläche ca.:
289 m²
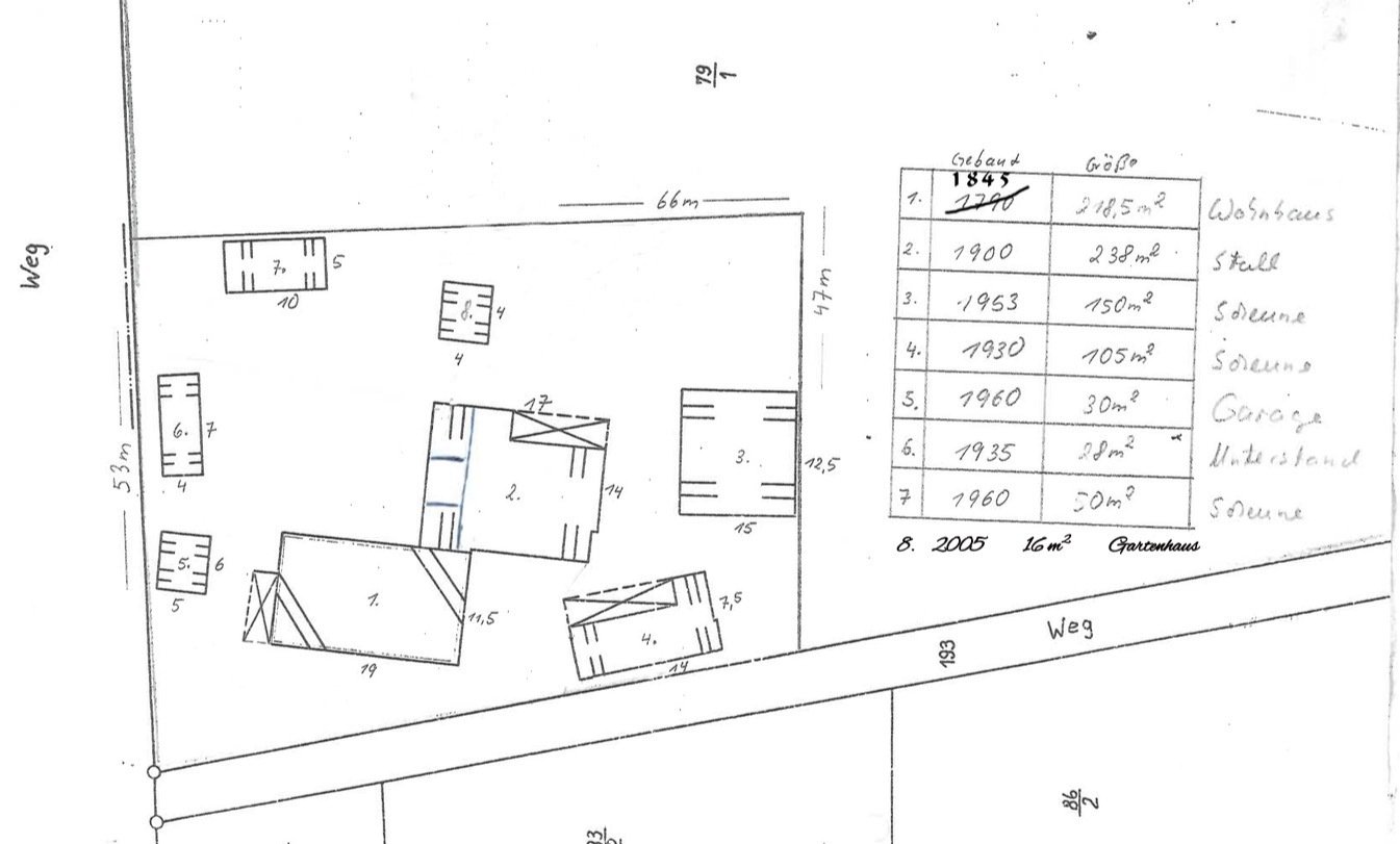
Grundstück ca.:
1.680 m²
Zimmeranzahl:
10
Willkommen in Ihrem Einfamilienhaus oder Zweifamilienhaus oder einen zusätzlichen Hausplatz für ihren Neubau oder oder oder hier ist viel möglich. Dieses beeindruckende Haus bietet Ihnen mit 10 Zimmern auf 289 m² Wohnfläche, einem Anbau, einem Keller und einem weitläufigen Grundstück von 1680 m² ausreichend Platz für Ihre Familie und Ihre individuellen Wohnwünsche. Mit wenig Aufwand kann man das Einfamilien- zu einem Zweifamilienhaus umbauen. Oder direkt nebenan neu bauen, die Grundstücke sind getrennt und der jetzige Garten mit ca. 800 qm bebaubar. Hier kann man sich frei entfalten, für jemanden dem die Ideen nicht ausgehen das perfekte Haus.
Die beiden Etagen laden dazu ein, kreative Ideen zu verwirklichen. Genießen Sie entspannte Stunden in einem der drei Schlafzimmer. Eine Einbauküche, die nicht nur funktional, sondern auch einladend ist, sowie ein Vorratsraum mit Anschluss für die Waschmaschine steht bereit. Der Balkon bietet Ihnen die perfekte Möglichkeit, die frische Luft und die Aussicht zu genießen, während das Kaminzimmer für wohlige Wärme an kalten Tagen sorgt. Entspannen Sie in der hauseigenen Sauna oder nutzen Sie den Dachboden für zusätzlichen Stauraum oder kreative Projekte.
Dieser Wohntraum vereint Funktionalität und Stil und wartet darauf, von Ihnen entdeckt zu werden.
Haustyp: Mehrfamilienhaus
Etagenanzahl: 2
Provisionspflichtig: ja
Nutzfläche ca.: 80 m²
Küche: Einbauküche
Bad: Dusche, Bidet
Anzahl Schlafzimmer: 3
Anzahl Badezimmer: 2
Balkon: 1
Terrasse: 2
Einliegerwohnung: ja
Seniorengerecht: ja
Gäste-WC: ja
Dachboden: ja
Kamin: ja
Sauna: ja
Keller: teil unterkellert
Umgebung: Apotheke, Bus, Einkaufscenter, Einkaufsmöglichkeit, Grundschule, Kindergarten, ruhige Gegend, Polizei, Tennisplatz, Wald, weiterführende Schule
Anzahl der Parkflächen: 2 x Garage
Möbliert: nein
Qualität der Ausstattung: einfach
Baujahr: 1967
Verfügbar ab: sofort
Energieausweistyp: Energieausweis liegt zur Besichtigung vor
Bei Abschluss eines Kaufvertrages wird eine Vermittlungsprovision in Höhe von 3,57 % inklusive 19 % Mehrwertsteuer auf den Kaufpreis vom Käufer fällig.
Die von uns gemachten Informationen beruhen auf Angaben des Verkäufers bzw. der Verkäuferin. Für die Richtigkeit und Vollständigkeit der Angaben kann keine Gewähr bzw. Haftung übernommen werden. Ein Zwischenverkauf und Irrtümer sind vorbehalten.
AUF WUNSCH empfehlen wir Ihnen Finanzierungsexperten aus der Region.
Wir weisen auf unsere Allgemeinen Geschäftsbedingungen hin. Durch weitere Inanspruchnahme unserer Leistungen erklären Sie die Kenntnis und Ihr Einverständnis.
Das könnte Ihnen auch gefallen

GOOSSEN-Immobilien
Herr Bernd Gooßen
An der Lohe13
21714 Hammah
Telefon: +49 4144 6986848



















